Władze gminy Chojnice wracają do koncepcji adaptacji budynku nieczynnego internatu przy SP w Swornegaciach na potrzeby tzw. Uniwersytetu Ludowego. Powodem jest ogłoszenie przez Urząd Marszałkowski konkursu na dotację z programu Infrastruktura kultury.
19 października 2023 11:48Aktualnie w byłym internacie przebywa jeszcze kilkunastu uchodźców z Ukrainy. Być może za 2-3 lata powstanie w nim Uniwersytet Ludowy, który ma służyć lokalnej – i nie tylko – społeczności. Jak przekazał na niedawnej konferencji prasowej wójt Zbigniew Szczepański, mieliby z UL korzystać m.in. stowarzyszenia sportowe, KGW czy organizacje pozarządowe. Ma być zachowane ok. 25 miejsc noclegowych dla osób, które przebywałyby w nim na dłuższych szkoleniach czy konferencjach. Część z nich będzie przystosowana do pobytu osób niepełnosprawnych.

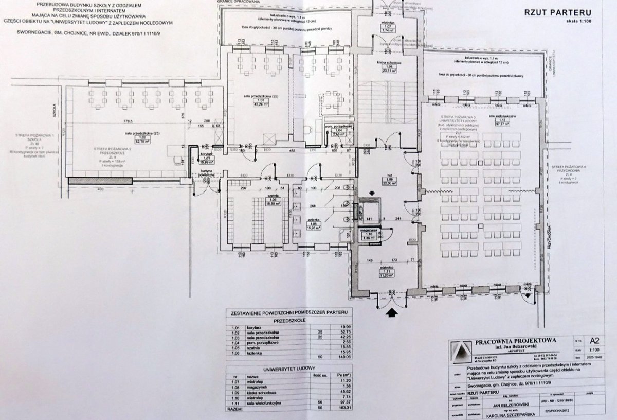
Na parterze byłaby sala konferencyjna o powierzchni ok. 100 m2, a w części piwnicznej kilka mniejszych salek na tzw. zajęcia warsztatowe. Wybudowana zostanie winda. Tak zakłada koncepcja projektowa, skąd pochodzi nasze zdjęcie. Obecnie władze gminy kończą negocjacje cenowe z wykonawcą projektu, który będzie potrzebny do podpisania ewentualnej umowy na dofinansowanie. Gmina Chojnice powinna do 15 listopada najpóźniej złożyć wniosek do Pomorskiego Urzędu Marszałkowskiego, który ogłosił konkurs. Dotacja może wynieść 66% kosztów kwalifikowanych.
(je)

CHOJNICE.COM
© Copyright Chojnice.com 2016. Wszelkie prawa zastrzeżone. Wykonanie:
Portale internetowe